一、脚手架细部加强构造
1、洞口连墙对拉构造
洞口拉结细部做法:
架体小横杆延长作为连墙杆,a为800 mm或1050 mm(悬挑式脚手架为800 mm,落地式脚手架为1050 mm),连墙杆外露洞口≥100 mm。在连墙杆上,内外墙各附加一根钢管,用扣件连接,小横杆两端分别外露洞口各≥100 mm。进入装修阶段,墙体需加设成品保护。
2、连墙件抱柱构造
柱子拉结细部做法:
在个别位置无法两步三跨设置连墙件时,采用抱柱补强措施。在架体上附加一根连墙杆,延伸至柱子一侧,在柱子另外三个侧面附加三根小横杆,用扣件与连墙杆连接,形成环抱。钢管外露长度≥100 mm。
3、抛撑构造
说明:
1. 此构造用于建筑物柱距较大、层高≥5 m等,连墙件设置不能满足两步三跨要求的情况。
2. 搭设抛撑时,抛撑采用通长杆并采用旋转扣件固定在脚手架上,与地面的倾斜度为45°~60°。
3. 普通脚手架开始搭设立杆时,也应每隔六跨设置一根抛撑,直至连墙杆安装稳定后,方可根据情况进行拆除。
4、层高过高、柱距过大时连墙件构造
格构柱细部做法:
当层高过高、柱距过大时可增设格构柱,格构柱截面尺寸宜为460 mm×460 mm,钢格构为4根150 mm×150mm×12 mm角钢及缀板焊接而成,每隔两步三跨设置一根钢管作为连墙件。主体混凝土浇筑时,应设置格构件预埋件。
5、外架内防护构造
外架填芯杆细部做法:
架体与建筑物的间隙应小于150 mm,间隙超大时,可充分利用靠墙一端的横向水平杆合理外伸(不应大于架体宽度的40%,大于400 mm时应增设填芯杆),每层应采取铺设钢笆片、挂设安全兜网等防护措施,使架体与建筑物的间隙满足要求。
1. 钢笆片:架体与建筑物的间隙大于400 mm时则需要使用钢笆片措施。
2. 安全兜网:架体与建筑物的间隙为150~400 mm时则需要使用安全兜网措施。
6、剪力墙处连墙件构造(方法一)
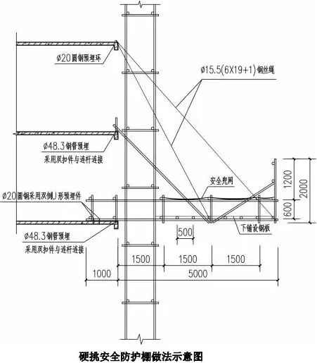
墙体拉结细部做法: 在剪力墙上预埋Ф 60 mm PVC管,a为800 mm或1050 mm (悬挑式脚手架为800 mm,落地式脚手架为1050 mm),通过预埋管拉通一根连墙杆与架体连接。 在连墙杆上,内外墙各附加一根钢管,用扣件连接。小横杆外露长度≥100 mm。 7、剪力墙处连墙件构造(方法二) 说明: 1. 外架连墙件分为两种:预埋式和穿墙式。 2. 混凝土浇筑前将预埋件埋入剪力墙或梁内(或设置穿墙螺栓孔),刚性连接件焊接螺母的一端套入预埋件(或穿墙螺栓),另一端通过扣件与脚手架立杆固定。 8、外架水平防护构造(软挑、硬挑) 说明: 1. 搭设软挑时,软挑采用通长杆并用旋转扣件与脚手架连接作为斜撑杆,斜撑杆与外架倾斜角度为45°~60°,每两跨设置一道斜撑杆,斜撑杆顶部设置两道防护与外架连接,上下分别是密目安 和水平兜网。 2. 图中未标注的钢管规格均为Ф 48.3 mm×3.6 mm ,硬防护棚与外架分别独立,不得通过任何杆件进行连接。悬挑钢管每1.5 m设一根,悬挑长度约5m (可根据工程实际情况并经计算调整),内侧端部用倒U形预埋件固定于水平面。 3. 硬挑安全防护底层钢管横铺在悬挑钢管上,间距500 mm。底层钢管上铺满钢笆片和安 形成防砸棚的底面,每4.5 m设置一道刚性连接,端部与预埋在梁内的钢管采用扣件连接,每4.5 m设置一道柔性连接,端部与预埋在梁内的锚环拉结。 4. 设置软挑安全防护棚时,若遇台风天气,应收回并拆除安 。设置硬挑安全防护棚,应因地制宜,综合考虑防护需要及防台风措施。软挑安全防护棚做法示意图硬挑安全防护棚做法示意。 落地脚手架底部做法: 1. 落地式脚手架基础为回填土时,可采取两种做法,分别为12号槽钢底座和3000 mm×200 mm×50 mm木垫板底座。 2. 落地式脚手架设置在地下室顶板上时,可使用150 mm×150 mm×6 mm钢板底座 (详见钢板底座图示) 1、悬挑式脚手架“四新”构造 方便检查钢丝绳是否松动,当末端钢丝绳弧度有减小时,说明该钢丝绳绳卡松动,需对卡扣重新排查并拧紧。 在型钢腹板焊接拉钩,钢丝绳直接拉在拉钩上,钢丝绳在受力时不易滑动,不易磨损,提高安全性能。 钢丝绳与拉环之间设置“鸡心环”,具有良好的耐磨性能,可减少钢丝绳与拉环之间的磨损,提高安全性能。 在型钢上增设可移动立杆套件,便于安装和调节立杆间距,避免定位筋在钢梁焊接时损伤型钢。 2、悬挑式脚手架转角处三角支撑架构造 3、悬挑式脚手架底部封闭构造

